据玉林市自然资源局,
江南区新盘公示!
项目名为“盛世翰林华府”
开发商为广西南兴房地产开发有限公司
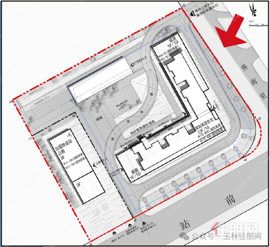
位于玉林市站前路与万秀路交汇处东北侧
↓↓↓

项目概况
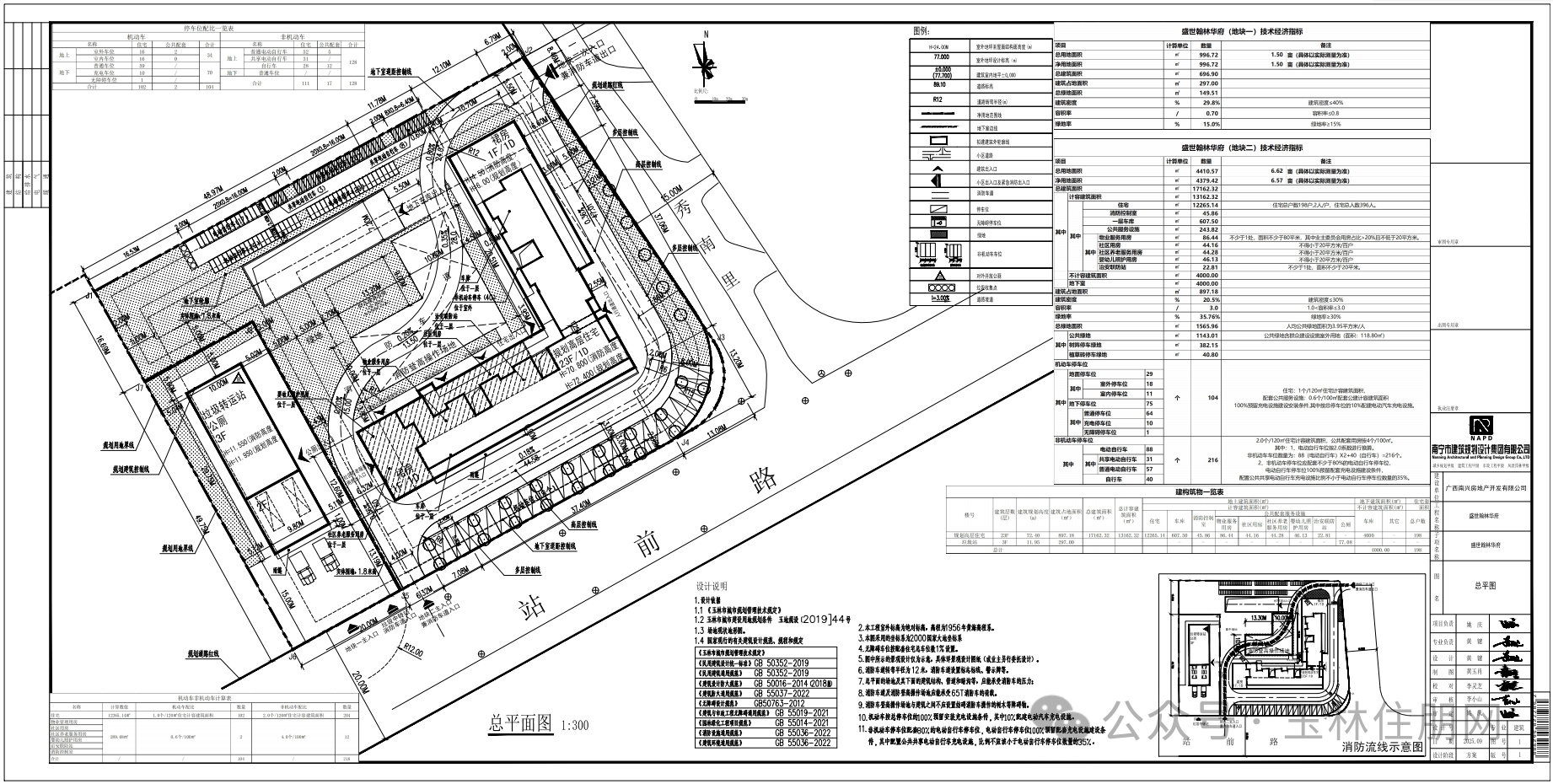
项目位于玉林市站前路与万秀路交汇处东北侧,分两个地块开发建设,总用地面积5407.29㎡(折合约8.12亩)。规 划建设23F高层住宅、垃圾站及配建公共配套服务设施。




经济技术指标
据技术经济指标显示,盛世翰林华府规 划住宅总户数198户,住宅总人数396人。规 划机动车停车位104个,非机动车停车位216个。

主要经济技术指标


从体量上看,这是一个小盘
但其区位优势明显
周边毗邻南兴广场、
城南实验小学和玉州区八中
适合建设“小而精”刚需盘
敬请期待新盘入市吧!













